产品简介
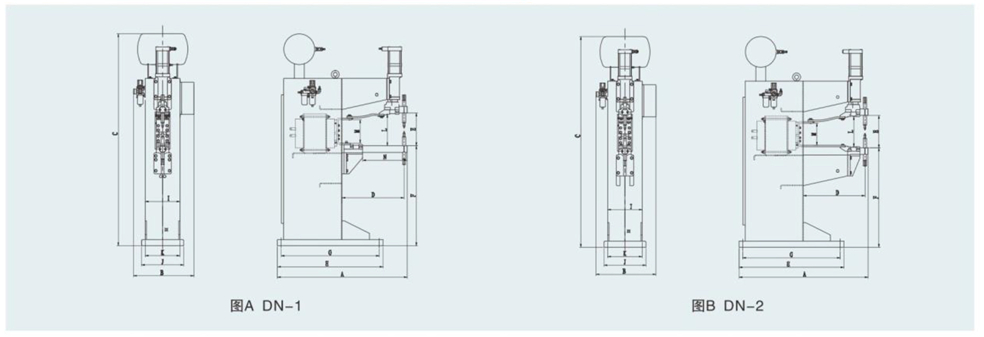
点焊机系列:DN-P- 1/2-L
DN:通用工频点焊机
P:额定容量
1/2:1, 表示下臂件为裸铜捧;2,表示一般臂件
L:臂深尺寸,即臂长尺寸
例如:额定容量为100KVA,下臂件为裸铜捧,臂深尺寸为500mm的点焊机表示为DN-100-1-500
产品特点
●稳定的机身结构。
●二次导电部分采用上绝缘方式,可避免铁屑的辅着或下座安装焊接工件时易产生绝缘部分的短路事故。
●可任意调整加压电极速度,减缓了对被焊接物体加压时的冲击。也减少了焊接时的噪声。
●变压器采用低阻抗设计,二次回路上采用了高品质的导电材料,降低了内耗。得到了小输入获得更大的焊接电流。
●可存储15个焊接程序:不同的焊接规范可存储在不同的焊接程序里,非常方便、顺利地实现不同工件的准确焊接。
●配备的二次反馈环,可持续弥补焊接电流,两次放电工作模式。大大提高焊接稳定性,特殊材料可作预热或回火处理。
●操作界面采用数码管或液晶显示,清晰、明了、直观。
●广泛适用于铁线五金、家用电器制造、钣金加工制造、微电子及其他领域。
技术参数

外形尺寸


设计理念
适用焊接形式:

产品细节
